
Lebenstraum auf 150 m²
Die Abweichung vom Normalen begründet das Besondere. Rückzugsorte für die ganze Familie entstehen durch neue Konzepte, die hier zur Realität werden.
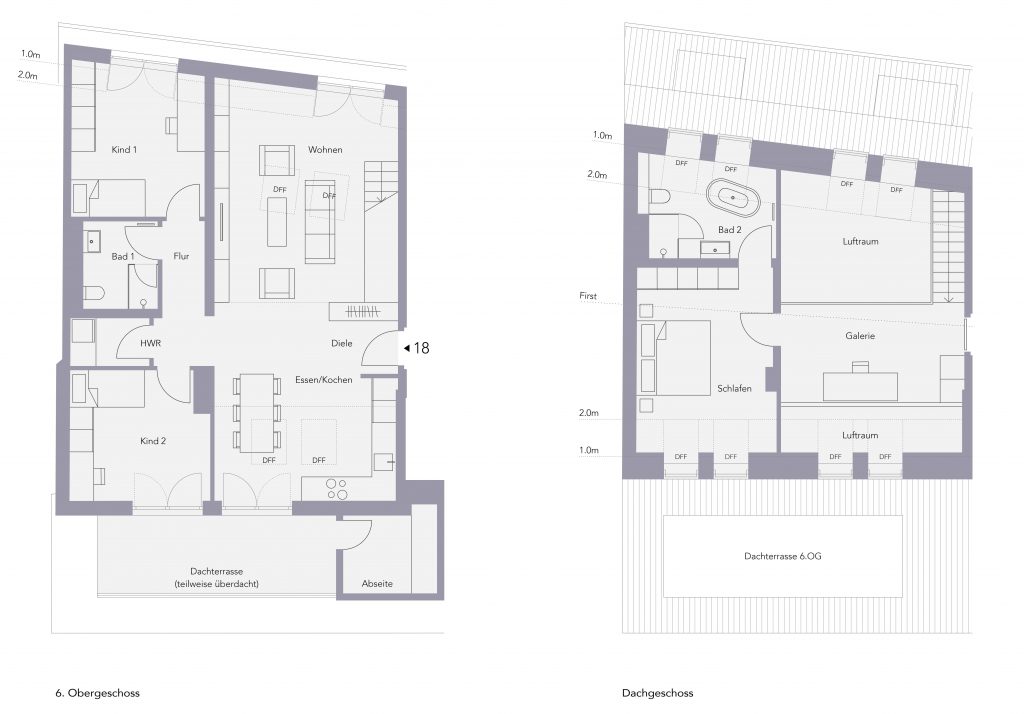
Große Kinderzimmer mit viel Licht, ein eigenes Tageslichtbad und ein separates Spiel-, Gäste- oder Arbeitszimmer. Die Eltern haben ihren eigenständigen Bereich im Dachgeschoss mit Masterbad und Ankleide.
Ausstattungsdetails
Erdwärmepumpe
Photovoltaikanlage
Holz-Alu-Fenster 3-fach verglast
elektrische Rollläden
Fußbodenheizung
Eiche Echtholz-Parkettboden
großformatige Feinsteinzeugfliesen
bodengleich geflieste Dusche

Grundriss
Wohnfläche 195,8 m²
Nutzfläche 185,97 m²
Grundstücksanteil 420 m²
Gartenfläche 320 m²
